portfolio

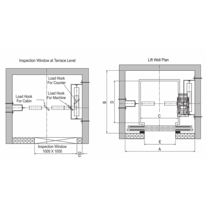
Machine Room-Less Elevator

Capacity 03 to 20 Passengers

Machine Room-Less (MRL) Lifts are traction elevators that feature a compact motor drive mounted on the car itself. They don't require to build a separate elevator machine room.

MRL Lifts allow you architectural flexibility, but they also provide fast, powerful and energy-efficient transportation. Though traction lifts were originally limited to high-rises, the innovative MRL design has allowed engineers to adapt traction elevators for low-rise buildings and multi-storey Apartments

Advantages of MRL Elevators

Permanent Magnet Gearless Machine for smooth and quiet motion.

1m/s to 1.6m/s speed range (180 starts per hour).

10 to 16 passengers load range (680 - 1088kg).

Smooth ride, due to the first class roller shoe suspension.

Versatile landing and car configurations.

Earthquake-friendly jigged guiding.

Totally integrated system for greater reliability.


portfolio
Quick Inquiry        
journey-area